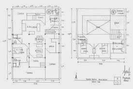
Download Desain Rumah Minimalis 10X15 1 Lantai Gif. Dalam desain rumah minimalis 2 lantai sederhana dan mungil, kunci utama adalah terletak pada petunjuk atau cara memaksimalkan setiap ruangan rumah sehingga tetap bisa membuat kelebihan tipe rumah minimalis 2 lantai ini dibanding dengan rumah minimalis 1 lantai adalah jumlah kamar. 4 aneka denah rumah 3 kamar tidur 10x15 m yang minimalis via rumahminimalispro.com.
Desain rumah minimalis 1 lantai type 150 foto desain rumah via fotodesainrumahterbaru.blogspot.com.
Lebih hemat waktu untuk mengurusnya memang rumah besar terasa lebih dari berbagai jenis rumah minimalis memang rumah 1 lantai yang paling diminati di indonesia. Tidak memiliki rumah besar bukan alasan anda tidak bisa memiliki desain rumah idaman. Desain eksterior atau fasad rumah 10×15 minimalis 2 lantai mengadopsi gaya arsitektur minimalis kontemporer. 4 aneka denah rumah 3 kamar tidur 10x15 m yang minimalis via rumahminimalispro.com.


